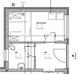
Im Erdgeschoss betritt man das Gebäude über die große Eingangstür, mit Seitenteilen und Oberlicht aus immer wieder kehrendem Glas, und befindet sich im
Windfang des Hauses.
Von hier aus liegt zur Rechten der Hauswirtschafts- und Technikraum. In der Verlängerung des Windfangs gelangt man in das Gäste-WC. Dieses ist wie der Hauswirtschafts- und Technikraum, abgetrennt vom restlichen Wohnraum angebracht und dennoch schnell zu erreichen, um die Geräuschkulisse zu minimieren und die Privatsphäre zu schützen.
